Beschreibung:
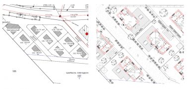
In einer beschaulichen Ortsgemeinde im Rheinland-Pfälzischen Landkreis Cochem-Zell, ist auf einem ca. 1500m² großen Baugrundstück die Erschließung von 8 Einzelgrundstücken, sowie die Errichtung eines kleinen Gemeinschaftshauses geplant.
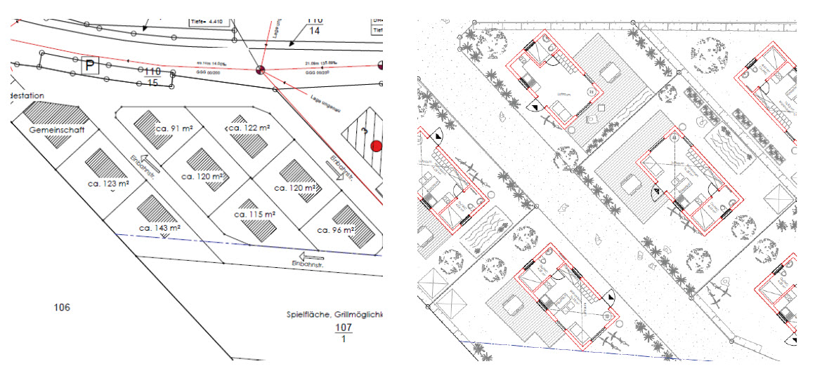
Die Verbandsgemeinde sowie die Kreisverwaltung haben unser Konzept im Rahmen einer Bauvoranfrage für positiv befunden. Dieses sieht die Bebauung mit Mini-Häusern <25m² für dauerhaftes Wohnen vor und steht ganz im Sinne einer weltgerechten Wohn- und Lebensform. Natürliche Baustoffe, geschlossene Wasserkreisläufe und energieautarke Wohneinheiten machen dieses Projekt zu etwas ganz besonderem.
Das Gesamtgrundstück hat eine Größe von 4597m², so dass außerhalb des bebauten Grundstückteils noch etwa 3000m² Fläche für eine Vielzahl von Möglichkeiten zur Verfügung stehen.
Da unser Focus, neben einer ökologisch nachhaltigen Bebauung, auch auf einen natürlichen Lebensraum gerichtet ist, sieht unser Plan auf der restlichen Grundstücksfläche eine Streuobstwiese mit Wildblumen, sowie die Schaffung von bunten Nutzgärten vor. Weiterhin besteht baurechtlich die Möglichkeit einen Geräteschuppen sowie eine Pergola zu errichten.
Die einzelnen Parzellen wurden mit 91 bis 143m² geplant und können noch geringfügig variieren. Da die Kosten für die Vermessung und Erschließung des Geländes noch nicht final ermittelt werden konnten, kann zum jetzigen Zeitpunkt noch kein verbindlicher Verkaufspreis pro Parzelle angegeben werden.
Weitere Infos unter:
Wohnderful GmbH – Bauträger für alternative Kleinwohnformen, Projektentwicklung und Grundstücksvermittlung 71404 Korb – Ligusterweg 24
www.wohnderful.de info@wohnderful.de





















